- Woonoppervlakte
- Circa 292 m²
- Perceeloppervlakte
- Circa 2.580 m²
- Bouwjaar
- Gebouwd in 1988
- Aantal kamers
- 5 kamers (4 slaapkamers)
Buitenburen 2 te Noordwolde: wonen in rust en ruimte, met uitzicht over de landerijen en natuur
Aan een autoluwe straat in het buitengebied van Noordwolde staat deze goed onderhouden boerderij. Een schitterende plek met weids uitzicht over de omliggende landerijen en een nabijgelegen natuurgebied. Hier ervaart u rust, privacy en vrijheid, terwijl voorzieningen zoals supermarkten, sportverenigingen en scholen toch op loopafstand bereikbaar zijn.
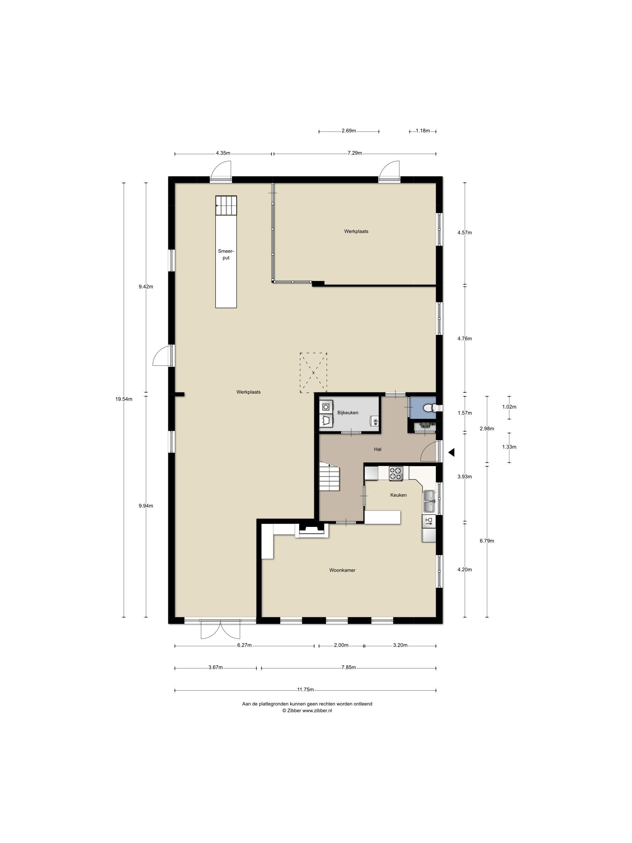
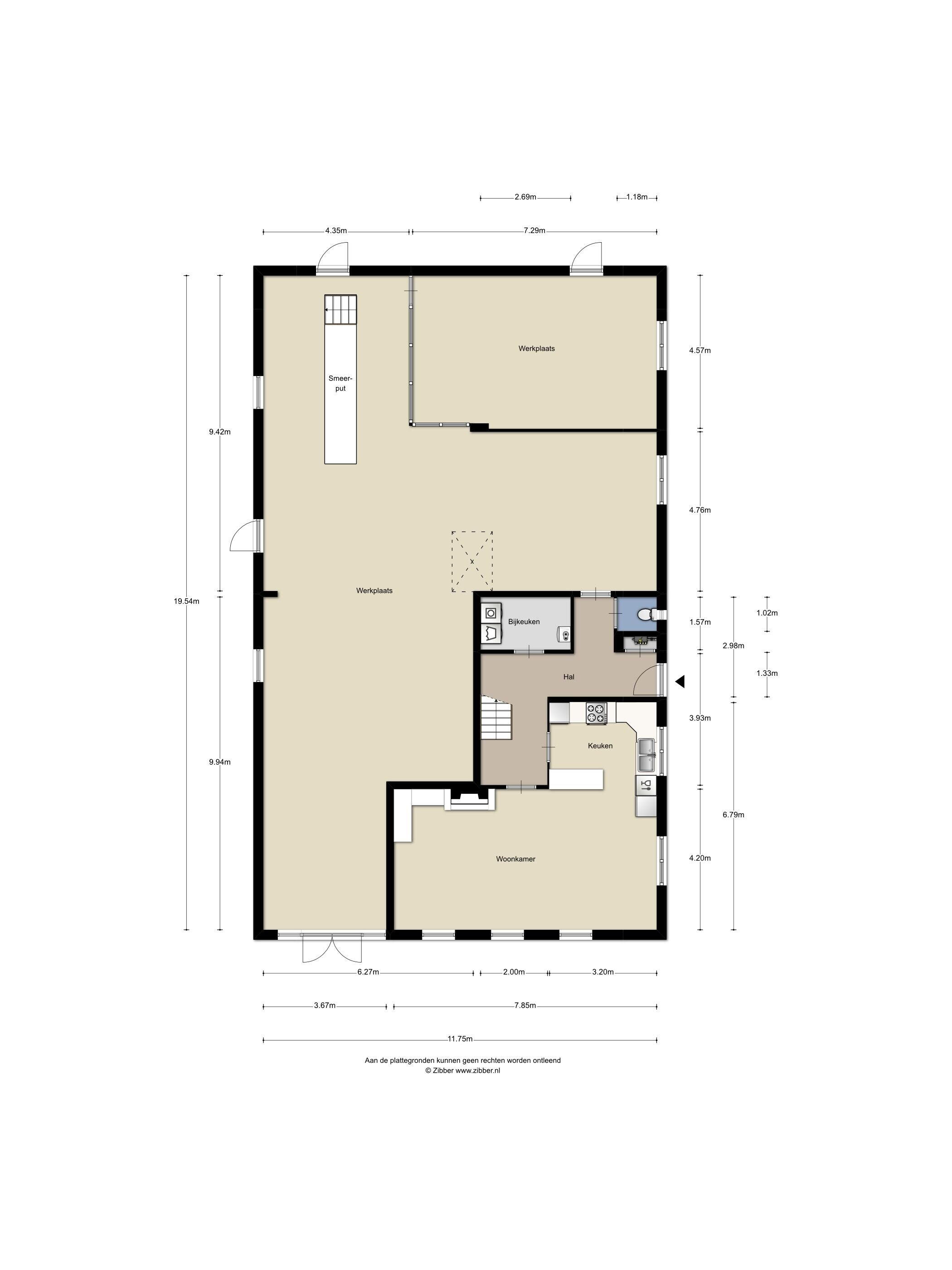
Indeling
Vanuit de hal komt u in de woonkamer, waar een sfeervolle haardpartij en een landelijke open keuken zorgen voor een warm en uitnodigend geheel. Via de dubbele deuren aan de voorzijde bereikt u de inpandige garage. Deze ruimte is volledig geïsoleerd en voorzien van een doorgang naar de hal.
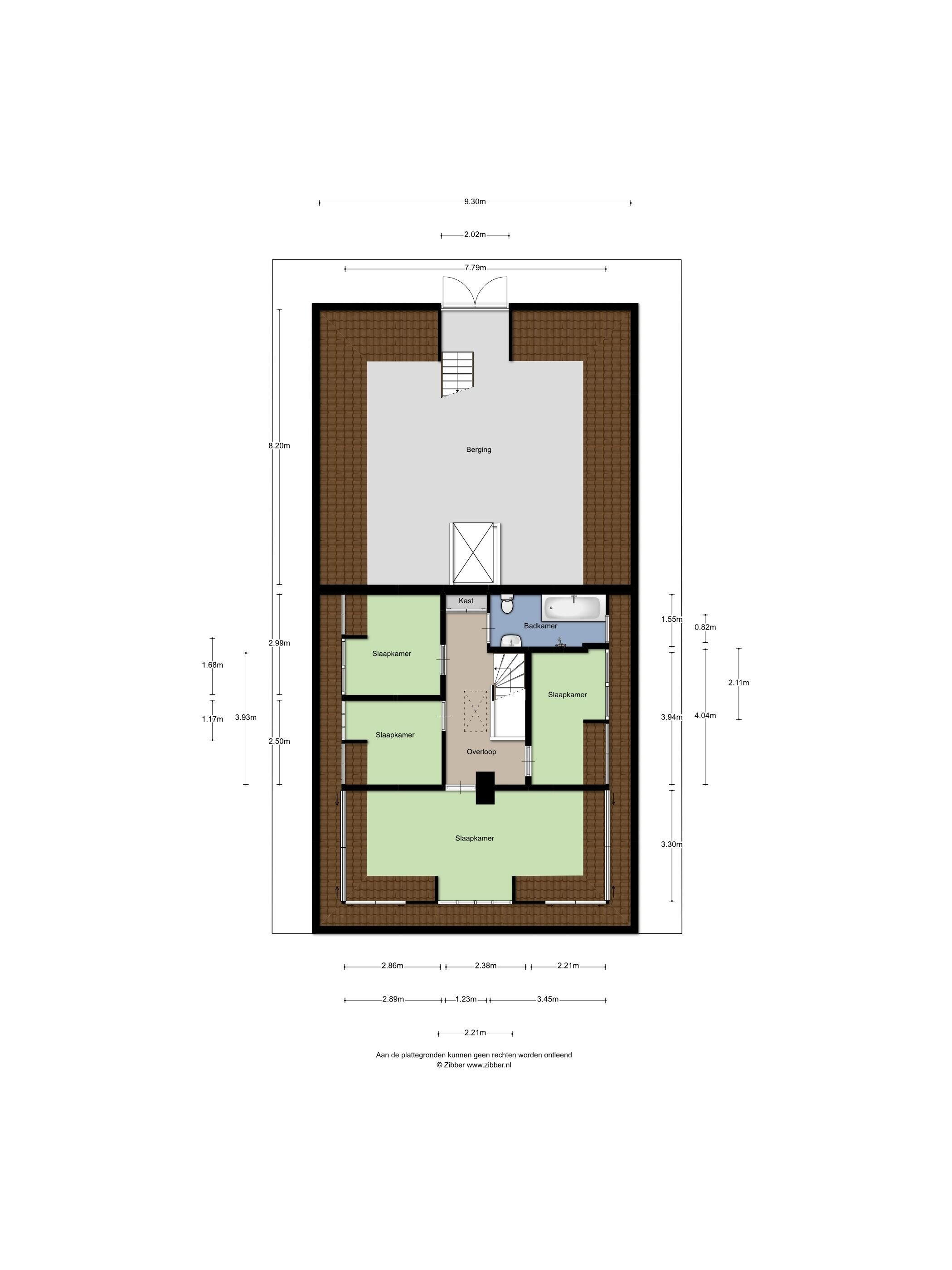
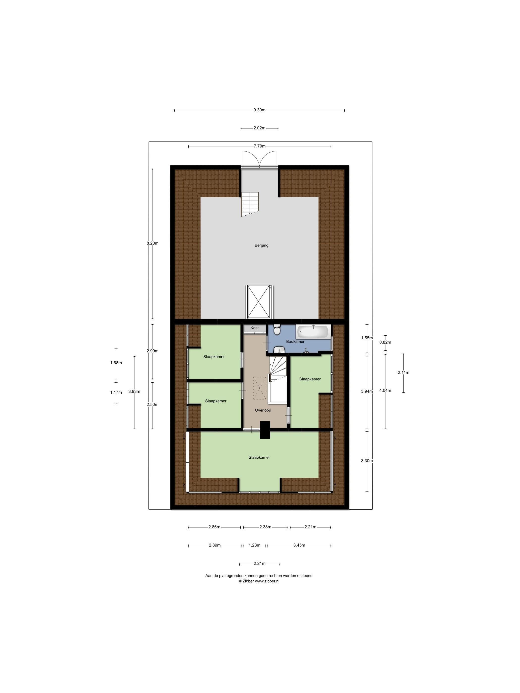
Op de eerste verdieping bevindt zich een royale overloop die toegang geeft tot vier slaapkamers en de badkamer. De badkamer is uitgerust met een ligbad, douche, toilet en wastafelmeubel.
Extra mogelijkheden
De boerderij beschikt momenteel over een werkplaats en smeerkelder. Deze ruimtes kunnen eenvoudig worden omgevormd tot tot dubbele bewoning. Zo biedt de woning volop mogelijkheden om naar eigen wensen in te richten.
Buitenruimte
De lange oprit geeft de boerderij een statige uitstraling en leidt naar een open schuur, ideaal voor het stallen van caravans, auto’s of extra opslag. In de besloten voortuin staat een blokhut met douche.
Bijzonderheden
• Prachtige ligging in het buitengebied van Noordwolde; weids uitzicht over landerijen en natuurgebied;
• Woonoppervlakte: 292 m²;
• Perceeloppervlakte: 2.580 m²;
• Energielabel B;
• Grotendeels voorzien van isolatieglas;
• Eiken spanten en zware fundering, gebouwd met oog voor kwaliteit;
• Ruimte en mogelijkheden voor werk, hobby of dubbele bewoning;
• De vermelde prijs betreft een 'bieden vanaf-prijs'.
Kortom: Deze karakteristieke boerderij combineert een unieke ligging met veel ruimte, kwaliteit en mogelijkheden. Een droomplek voor wie landelijk wil wonen zonder concessies te doen aan bereikbaarheid van voorzieningen. XLCASA biedt u graag een bezichtiging aan, waarin wij de mogelijkheden van deze prachtige boerderij uiteenzetten. Voor meer informatie neemt u dan gerust contact met ons op.
Disclaimer / Meetinstructie
Deze informatie is met de grootst mogelijke zorgvuldigheid samengesteld. Aan de inhoud kunnen echter geen rechten worden ontleend en verkoper en makelaar aanvaarden geen aansprakelijkheid voor eventuele onjuistheden of onvolledigheden. Alle informatie moet uitsluitend worden gezien als een uitnodiging tot bezichtiging of tot het doen van een bod; verkoper behoudt zich het recht van gunning voor.
De opgegeven gebruiksoppervlakte is berekend conform de NEN 2580 Meetinstructie gebruiksoppervlakte woningen. Deze methode is bedoeld om een uniforme manier van meten te bieden. Desondanks kunnen er verschillen ontstaan, bijvoorbeeld door interpretatie, afrondingen of beperkingen bij het inmeten. Koper wordt geadviseerd de maten zelf te (laten) controleren.
Overdracht
- Vraagprijs
- € 950.000 k.k.
- Status
- Beschikbaar
- Aanvaarding
- In overleg
Bouw
- Object type
- Woonboerderij, vrijstaande woning
- Soort bouw
- Bestaande bouw
- Bouwjaar
- 1988
Oppervlakte en inhoud
- Woonoppervlakte
- 292 m²
- Perceeloppervlakte
- 2.580 m²
- Inhoud
- 1.287 m³
- Externe bergruimte
- 26 m²
Indeling
- Aantal kamers
- 5 kamers (4 slaapkamers)
- Aantal badkamers
- 1 badkamer en 1 apart toilet
- Badkamervoorzieningen
- Douche, ligbad, toilet, en wastafel
- Aantal woonlagen
- 2 woonlagen en een zolder
Energie
- Energielabel
- B
- Isolatie
- Dakisolatie, grotendeels dubbelglas en muurisolatie
- Verwarming
- Cv-ketel
Buitenruimte
- Ligging
- Aan rustige weg, in bosrijke omgeving, open ligging en vrij uitzicht
- Tuin
- Tuin rondom
Garage
- Soort garage
- Inpandig
- Capaciteit
- 3 auto's
- Voorzieningen
- Elektra en stromend stromend water
Parkeergelegenheid
- Soort parkeergelegenheid
- Op eigen terrein
Energieverbruik in Noordwolde (FR)
Energielabel deze woning
Energielabel B
Publicatie energielabel:
Stroomverbruik per jaar
(Gemiddelde vrijstaande woning in Noordwolde (FR))
Gasverbruik per jaar
(Gemiddelde vrijstaande woning in Noordwolde (FR))
* Cijfers zijn afkomstig van het CBS en bedoeld als indicatie en kunnen verschillen voor deze woning
Indicatie hypotheeklasten
Eigen inleg:
Spaargeld / overwaarde
Rente:
Laagste 10-jaars rente
Laagste 10-jaars rente
2,75% - Centraal Beheer Groen... - NHG
3,05% - Centraal Beheer Groen... - 80%
Laagste 20-jaars rente
3,52% - Syntrus Achmea Groen B... - NHG
3,79% - Syntrus Achmea Groen B... - 80%
Laagste 30-jaars rente
3,64% - Syntrus Achmea Groen B... - NHG
3,88% - Syntrus Achmea Groen B... - 80%
Hypotheek:
Bruto maandlasten: € 0 p/m
Netto maandlasten: € 0 p/m
Hoe berekenen we dit?
Het rentepercentage is gebaseerd op de laagste 10-jaars vaste rente voor één hypotheekdeel. De vermelde rente (3.05% zonder NHG) is gecontroleerd op 06-10-2025. Deze berekening is gebaseerd op een annuïteitenhypotheek die volledig wordt afgelost, waarbij de maandlasten gedurende de gehele looptijd gelijk blijven. De werkelijke rente en netto maandlasten kunnen variëren, afhankelijk van uw persoonlijke situatie en de hypotheekverstrekker. Raadpleeg een financieel adviseur voor een nauwkeurige berekening en advies. Aan deze berekening kunnen geen rechten worden ontleend; het dient enkel als indicatie.
Documentatie
Kadastrale kaart
Leefomgeving
Plattegronden PDF
BAG uittreksel
Brochure
Bezoek onze website
Bezichtiging
Bod uitbrengen
Waardebepaling
Zoekopdracht
Alles downloaden
Zonnegrenzen bekijken
Inwoners in Noordwolde (FR)
Cijfers voor postcodegebied 8391
- Totaal aantal inwoners
- 3570 inwoners
- Mannen
- 49%
- Vrouwen
- 51%
Inwoners in Noordwolde (FR)
Cijfers voor postcodegebied 8391
- tot 15 jaar
- 14%
- 15 tot 25 jaar
- 10%
- 25 tot 35 jaar
- 19%
- 45 tot 65 jaar
- 31%
- 65 en ouder
- 26%
Huishoudens in Noordwolde (FR)
Cijfers voor postcodegebied 8391
- Eenpersoons zonder kinderen
- 37%
- Meerpersoons zonder kinderen
- 34%
- Huishoudens zonder kinderen
- 71%
Huishoudens in Noordwolde (FR)
Cijfers voor postcodegebied 8391
- Huishoudens met één kind
- 7%
- Huishoudens met meerdere kinderen
- 22%
- Huishoudens met kinderen
- 29%
Woningen in Noordwolde (FR)
Cijfers voor postcodegebied 8391
- Woningen voor 1945
- 23%
- Woningen tussen 1945 en 1965
- 15%
- Woningen tussen 1965 en 1975
- 16%
- Woningen tussen 1975 en 1985
- 16%
- Woningen tussen 1985 en 1995
- 9%
Woningen in Noordwolde (FR)
Cijfers voor postcodegebied 8391
- Woningen tussen 1995 en 2005
- 14%
- Woningen tussen 2005 en 2015
- 5%
- Woningen na 2015
- 2%
- Huurwoningen
- 40%
- Koopwoningen
- 50%
Overige in Noordwolde (FR)
Cijfers voor postcodegebied 8391
- Gemiddelde WOZ waarde
- € 189.000,-
- Personen onder de 65 met uitkering
- 10%
Overige in Noordwolde (FR)
Cijfers voor postcodegebied 8391
- Adressen per km²
- 370
- Stedelijkheid (schaal 1 op 5)
- 20%


Waarom XLCASA Makelaars?
Op zoek naar een actieve makelaar? Bij XLCASA Makelaars doen we wat we leuk vinden en waar we goed in zijn. Met een gemiddelde beoordeling van 9.2 weten we dat te bewijzen. Vanuit onze kantoren in Amsterdam en Leeuwarden zijn we niet alleen in staat Noord-Nederland en Friesland te betreden. XLCASA is in heel Nederland actief.
Met passie en plezier helpen we onze klanten op weg, als verkoopmakelaar en als aankoopmakelaar. Dit doen we anders dan anderen. Met onze creatieve aanpak zijn we innovatief in de markt. De efficiënte inzet van diverse media en nauw klantcontact zijn onderdelen van onze unieke werkwijze.

Nieuwste reviews
-
Paulus Moreelsestraat 6
Dennis Metz is ter zake kundig en zeer professioneel. Hij houdt je gedurende het gehele verkoopproces goed op de hoogte.
-
Sonoystraat 22
Vanaf dag 1 was ons contact heel prettig. Dennis neemt de tijd voor je verhaal en is eigenlijk altijd telefonisch of per whatsapp bereikbaar...
-
Geldersestraat 126 A
We hadden bewust een makelaar gekozen die niet lokaal was.XLCasa heeft ons heel goed begeleid en we hebben het huis snel verkocht.Alle afspr...